Aerial view of a house surrounded by trees, adjacent to a large cornfield, near a road with a vehicle, during sunset.

The Everhaus redefines sustainable living, seamlessly blending performance with design to achieve unparalleled efficiency and comfort. Utilizing a highly insulated envelope, airtight construction, and high-performance mechanical systems, the home optimizes energy use while maintaining a unique spatial experience. Expansive, light-filled living areas contrast with cozy retreats, creating a balance of openness and enclosure. Engineered for resilience, it drastically reduces operational energy, ensuring exceptional indoor comfort and a minimal environmental footprint. More than a house, it is a forward-thinking statement where architecture and sustainability converge to shape the future of living.  

everhaus

An Everlasting Sustainable Home | Certified Passive House

Akron, NY

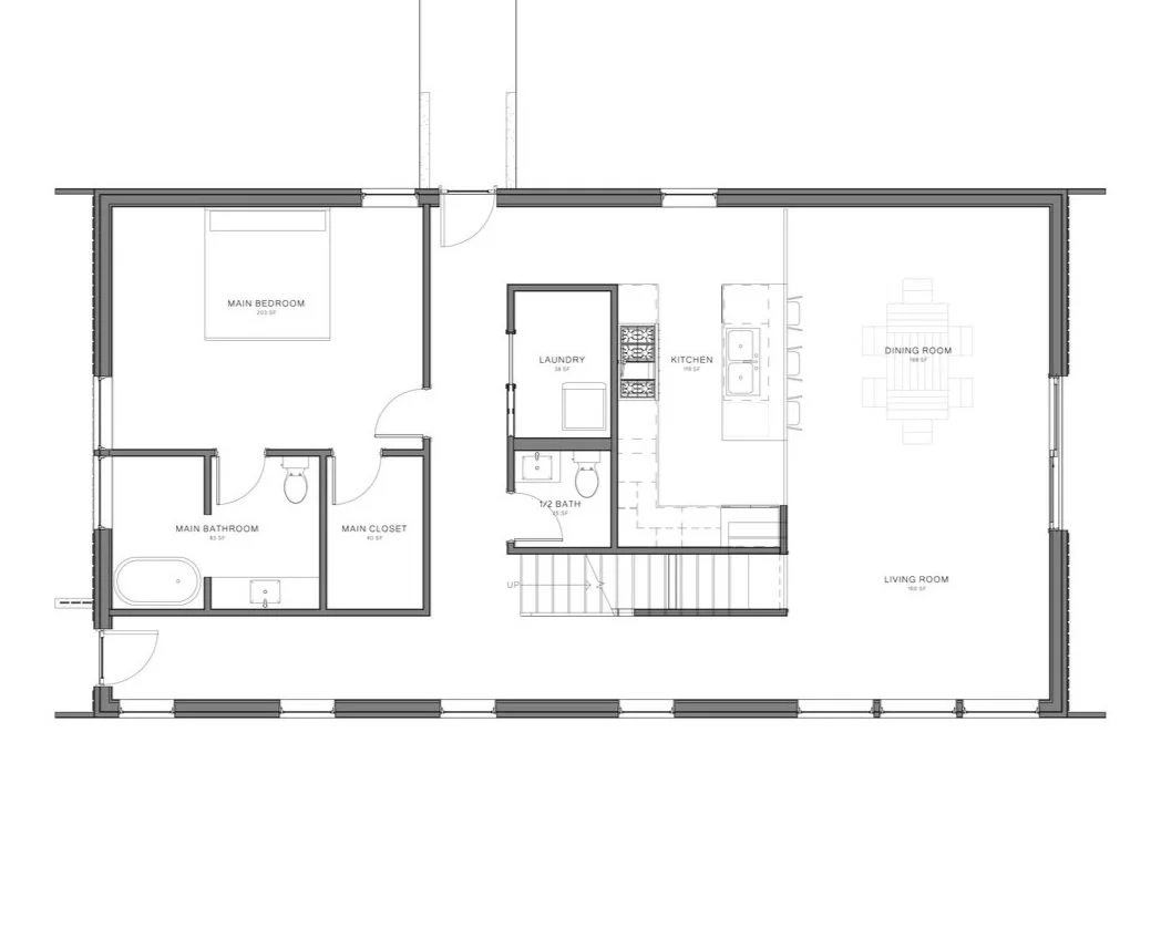
Livable Square Footage - 2,025 sq ft

Bedrooms - 3

Bathrooms - 2.5

Modern open-concept living room and kitchen with large windows, brown leather sofa, wooden chairs at kitchen island, and loft area with railing